Trilocale in vendita

Manduria, Via Anzio - San Pietro-Specchiarica
€ 105.000
3 locali 3 locali
90 Mq 90 Mq
1 bagno 1 bagno

Trilocale in vendita

Manduria, Via Anzio - San Pietro-Specchiarica

Descrizione annuncio

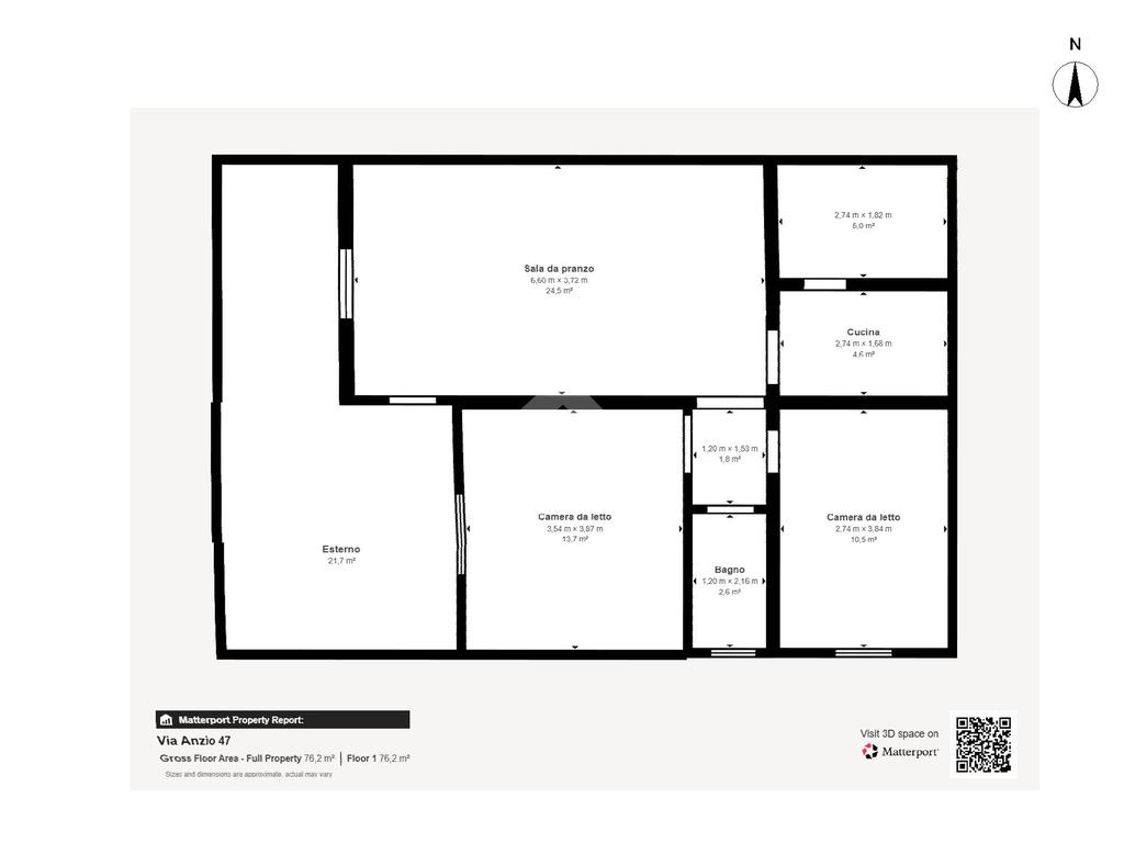
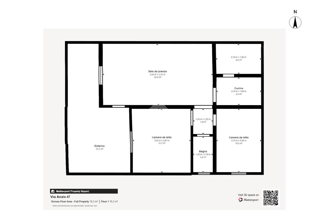
Nel cuore della suggestiva località di San Pietro-Specchiarica, nel comune di Manduria, si propone in vendita un accogliente appartamento di 90 mq. Costruito nel 1980, l'immobile si presenta come un'opportunità ideale per chi desidera vivere in una zona tranquilla, a breve distanza dalle splendide spiagge del Salento. La proprietà si compone di spazi funzionali e luminosi. La zona giorno è caratterizzata da un ampio soggiorno, perfetto per momenti di relax e convivialità. La cucina, separata, è pratica e ben organizzata. Completano l'appartamento due camere da letto, ideali per una famiglia o per ospitare amici e parenti. La posizione strategica consente di raggiungere facilmente i principali servizi e le attrazioni turistiche della zona, rendendo questa soluzione abitativa un'opzione interessante sia come residenza principale che come casa vacanze.

Mostra tutto

Nelle vicinanze

Supermercati Supermercati
Centro Commerciale Chidro
2,0 Km
Negozi Negozi
Bruno Market
3,0 Km
Bar Bar
Summer Light
2,6 Km
Ristoranti Ristoranti
Miramare
580 m
Da zio Giorgio
950 m
Mostra tutto

Caratteristiche

Rif.:
61160680
Piano:
Terra di 1
Totale piani:
1
Terrazzi:
1
Camere da letto:
2
Arredamento:
Completo
Mostra tutto
Prezzo Prezzo
€ 105.000
Rata mutuo Rata mutuo
€ 495 / mese
Spese annue Spese annue
€ 0
Proponi il tuo prezzoProponi il tuo prezzo

Classe Energetica

G
G
G
G
G
G
G
G
G
EP invernale del fabbricato:
EP estiva del fabbricato:
Anno di costruzione:
1980
Riscaldamento:
Autonomo
Tipo impianto:
Ad aria
Tipo alimentazione:
Aria

Ti interessa visionare l'immobile?

Fissa un appuntamento  Fissa un appuntamento

Richiedi informazioni

Clicca su Leggi per aprire l'informativa
* Questi campi sono obbligatori

Calcola il tuo mutuo

Semplice e senza impegno
Anticipo

( % )
Mutuo

( % )

pochi semplici passi

inserisci i tuoi dati
Questionario completato
Grazie per aver richiesto un appuntamento senza impegno con un nostro Consulente del Credito e Assicurativo.

Hai inserito correttamente tutti i dati necessari e a breve riceverai una e-mail con un link da convalidare per inviare i tuoi dati.
Affiliato
Studio Mesagne Centro Srl
Corso XX Settembre, 13 74024 Manduria (TA)

Il nostro staff


  • Marco Summa
    Affiliato

  • Elena Fornaciari
    Coordinatrice

  • Nicoleta Jolanta Koziol
    Coordinatrice

  • Federica Emma Anya Mele
    Collaboratrice
Corso XX Settembre, 13 74024 Manduria (TA)
Zona: Manduria
Mostra su mappa
Orari: Lun-Ven: 09:00/13:00 - 16:00/20:00 Sab: 09:00/13:00
Affiliato
Studio Mesagne Centro Srl
Corso XX Settembre, 13 74024 Manduria (TA)

2026 Tecnocasa Franchising S.p.A. - P. IVA 08365160152 - Via Monte Bianco 60/A 20089 Rozzano (MI). Ogni agenzia ha un proprio titolare ed è autonoma. Privacy policy | Policy utilizzo | Cookie policy