Box / posti auto in vendita

Manduria, Via Antonio Annarumma
€ 45.000
2 locali 2 locali
87 Mq 87 Mq
1 bagno 1 bagno

Box / posti auto in vendita

Manduria, Via Antonio Annarumma

Descrizione annuncio

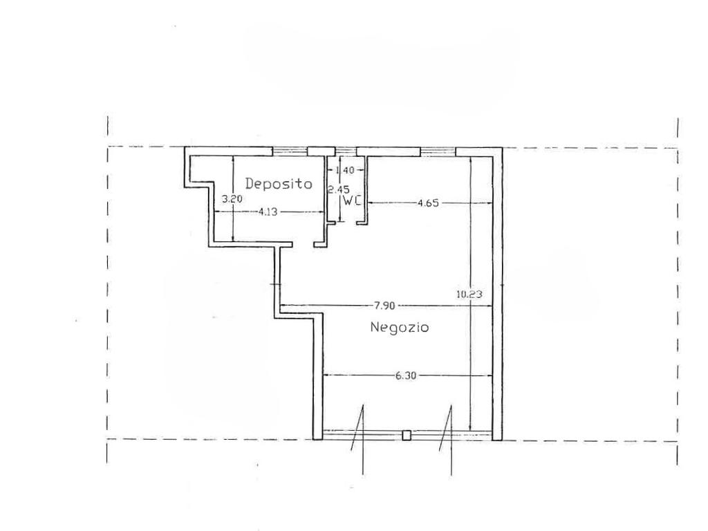
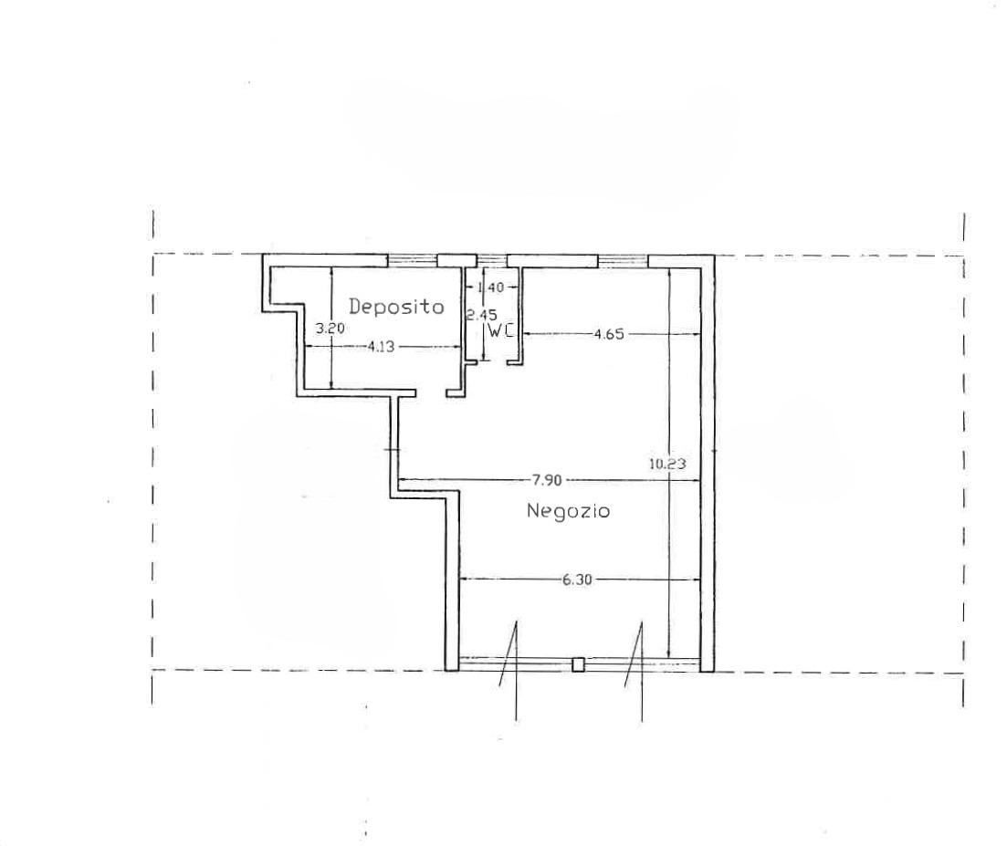
A Manduria, proponiamo in vendita un locale commerciale al piano terra, ideale per chi cerca una soluzione per la propria attività. L'immobile si estende su una superficie di 87 mq e si compone di due locali ben distribuiti con due ampie vetrine, perfetto per chi desidera avviare un'attività o espandere il proprio business. La proprietà include anche un comodo ufficio, ideale per gestire le attività lavorative in modo efficiente. Il bagno con antibagno garantisce praticità e comfort. Inoltre, il parcheggio disponibile nella strada facilita l'accesso per clienti e collaboratori.

Mostra tutto

Nelle vicinanze

Trasporto pubblico Trasporto pubblico
Manduria
Manduria
1,9 Km
Trasporto pubblico
2,0 Km
Ospedali Ospedali
Pronto Soccorso Presidio Ospedaliero Giannuzzi
1,8 Km
Supermercati Supermercati
PAM express
710 m
Meta
900 m
Conad City
1,4 Km
EuroSpin
1,4 Km
Bar Bar
Link Bar
390 m
Ristoranti Ristoranti
La Corte dei Vescovi
2,6 Km
Mostra tutto

Caratteristiche

Rif.:
61055450
Piano:
Terra di 1
Totale piani:
1
Box:
1
Posti auto:
2
Arredamento:
Assente
Mostra tutto
Prezzo Prezzo
€ 45.000
Rata mutuo Rata mutuo
€ 212 / mese
Spese annue Spese annue
€ 0
Proponi il tuo prezzoProponi il tuo prezzo
Immobile valutato con T·Valuta

Classe Energetica

G
G
G
G
G
G
G
G
G
EP globale non rinnovabile:
175.00 kW h/m² anno
EP globale rinnovabile:
3.50 kW h/m² anno
EP invernale del fabbricato:
EP estiva del fabbricato:
Anno di costruzione:
1980
Riscaldamento:
Autonomo
Tipo impianto:
Ad aria
Tipo alimentazione:
Aria

Ti interessa visionare l'immobile?

Fissa un appuntamento  Fissa un appuntamento

Richiedi informazioni

Clicca su Leggi per aprire l'informativa
* Questi campi sono obbligatori

Calcola il tuo mutuo

Semplice e senza impegno
Anticipo

( % )
Mutuo

( % )

pochi semplici passi

inserisci i tuoi dati
Questionario completato
Grazie per aver richiesto un appuntamento senza impegno con un nostro Consulente del Credito e Assicurativo.

Hai inserito correttamente tutti i dati necessari e a breve riceverai una e-mail con un link da convalidare per inviare i tuoi dati.
Affiliato
Studio Mesagne Centro Srl
Corso XX Settembre, 13 74024 Manduria (TA)

Il nostro staff


  • Marco Summa
    Affiliato

  • Elena Fornaciari
    Coordinatrice

  • Nicoleta Jolanta Koziol
    Coordinatrice

  • Federica Emma Anya Mele
    Collaboratrice
Corso XX Settembre, 13 74024 Manduria (TA)
Zona: Manduria
Mostra su mappa
Orari: Lun-Ven: 09:00/13:00 - 16:00/20:00 Sab: 09:00/13:00
Affiliato
Studio Mesagne Centro Srl
Corso XX Settembre, 13 74024 Manduria (TA)

2026 Tecnocasa Franchising S.p.A. - P. IVA 08365160152 - Via Monte Bianco 60/A 20089 Rozzano (MI). Ogni agenzia ha un proprio titolare ed è autonoma. Privacy policy | Policy utilizzo | Cookie policy