Casa indipendente in vendita

Manduria, Via del Prete
€ 170.000
6 locali 6 locali
350 Mq 350 Mq
1 bagno 1 bagno

Casa indipendente in vendita

Manduria, Via del Prete

Descrizione annuncio

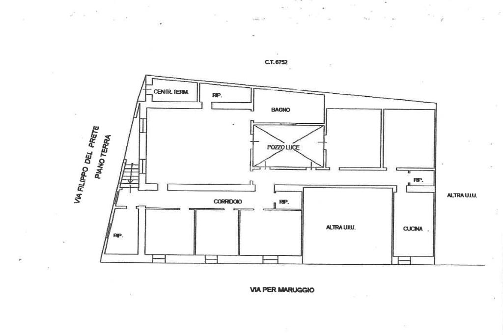
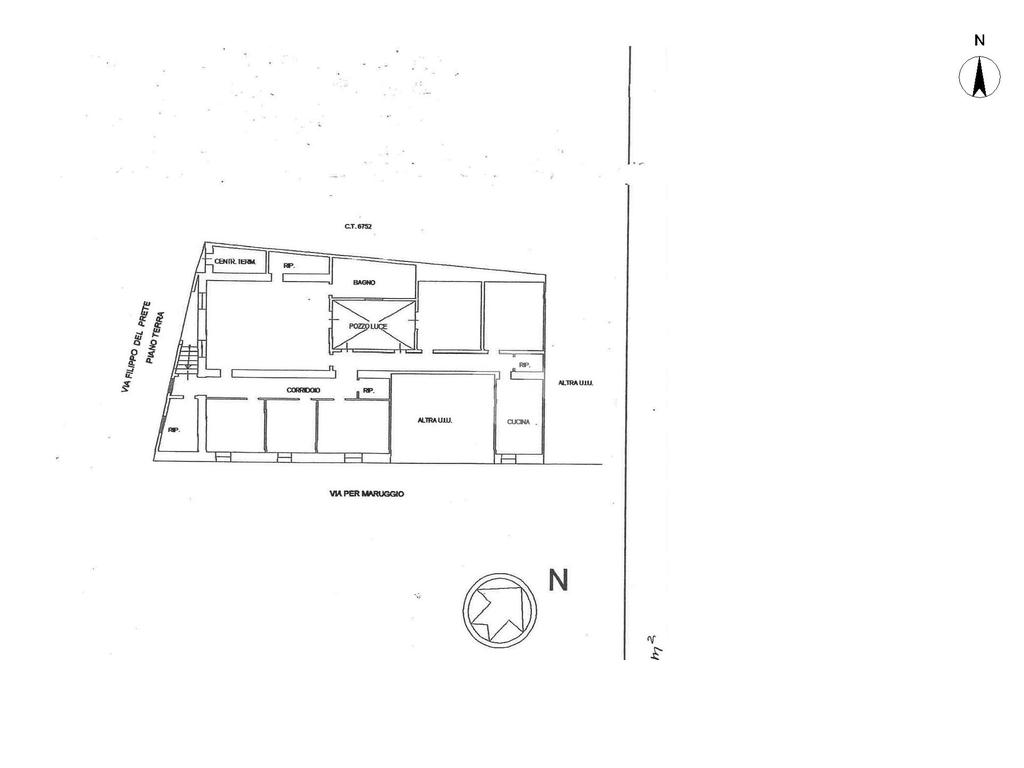
Nel cuore di Manduria, proponiamo in vendita una casa indipendente di 350 mq.

Situata in una posizione angolare, questa proprietà offre ampi spazi e numerose stanze, ideali per chi cerca una soluzione abitativa versatile. La struttura si trova al piano rialzato di un edificio di due piani, e offre la possibilità di personalizzare gli ambienti secondo le proprie esigenze. Perfetta per famiglie numerose o per chi desidera ampi spazi da dedicare a diverse attività, questa casa rappresenta un'opportunità unica nel suo genere.

La disposizione degli ambienti e la luminosità naturale che pervade ogni stanza contribuiscono a creare un'atmosfera accogliente e funzionale.

Mostra tutto

Nelle vicinanze

Trasporto pubblico Trasporto pubblico
Manduria
Manduria
760 m
Trasporto pubblico
1,0 Km
Ospedali Ospedali
Pronto Soccorso Presidio Ospedaliero Giannuzzi
460 m
Supermercati Supermercati
Conad City
420 m
Meta
630 m
PAM express
980 m
EuroSpin
1,5 Km
Bar Bar
Link Bar
1,3 Km
Mostra tutto

Caratteristiche

Rif.:
61005192
Piano:
Rialzato di 2
Totale piani:
2
Camere da letto:
3
Arredamento:
Assente
Condizionamento:
Autonomo
Mostra tutto
Prezzo Prezzo
€ 170.000
Rata mutuo Rata mutuo
€ 808 / mese
Spese annue Spese annue
€ 0
Proponi il tuo prezzoProponi il tuo prezzo

Classe Energetica

G
G
G
G
G
G
G
G
G
EP globale non rinnovabile:
175.00 kW h/m² anno
EP globale rinnovabile:
3.50 kW h/m² anno
EP invernale del fabbricato:
EP estiva del fabbricato:
Anno di costruzione:
1960
Riscaldamento:
Autonomo
Tipo impianto:
A radiatori
Tipo alimentazione:
Metano

Ti interessa visionare l'immobile?

Fissa un appuntamento  Fissa un appuntamento

Richiedi informazioni

Clicca su Leggi per aprire l'informativa
* Questi campi sono obbligatori

Calcola il tuo mutuo

Semplice e senza impegno
Anticipo

( % )
Mutuo

( % )

pochi semplici passi

inserisci i tuoi dati
Questionario completato
Grazie per aver richiesto un appuntamento senza impegno con un nostro Consulente del Credito e Assicurativo.

Hai inserito correttamente tutti i dati necessari e a breve riceverai una e-mail con un link da convalidare per inviare i tuoi dati.
Affiliato
Studio Mesagne Centro Srl
Corso XX Settembre, 13 74024 Manduria (TA)

Il nostro staff


  • Marco Summa
    Affiliato

  • Elena Fornaciari
    Coordinatrice

  • Nicoleta Jolanta Koziol
    Coordinatrice

  • Federica Emma Anya Mele
    Collaboratrice
Corso XX Settembre, 13 74024 Manduria (TA)
Zona: Manduria
Mostra su mappa
Orari: Lun-Ven: 09:00/13:00 - 16:00/20:00 Sab: 09:00/13:00
Affiliato
Studio Mesagne Centro Srl
Corso XX Settembre, 13 74024 Manduria (TA)

2026 Tecnocasa Franchising S.p.A. - P. IVA 08365160152 - Via Monte Bianco 60/A 20089 Rozzano (MI). Ogni agenzia ha un proprio titolare ed è autonoma. Privacy policy | Policy utilizzo | Cookie policy