Casa semindipendente in vendita

Manduria, Via Tito Livio
€ 70.000
6 locali 6 locali
159 Mq 159 Mq
1 bagno 1 bagno

Casa semindipendente in vendita

Manduria, Via Tito Livio

Descrizione annuncio

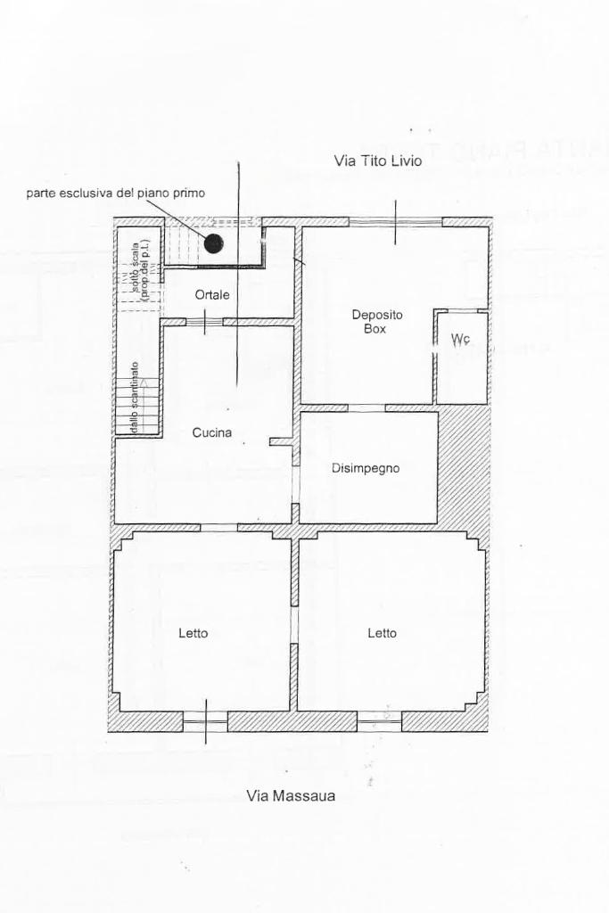
Nel cuore di Manduria, proponiamo in vendita una casa semindipendente che si distingue per la sua posizione strategica e la generosità degli spazi.

Con una superficie di 160 mq, l'immobile offre sei locali ben distribuiti, ideali per chi cerca comfort e funzionalità. L'affaccio su due vie garantisce luminosità e una piacevole ventilazione naturale, oltre a offrire un accesso comodo e pratico.

Situata in una zona centrale, la proprietà beneficia di tutti i servizi essenziali a portata di mano, rendendo la vita quotidiana semplice e agevole. Gli ampi spazi interni permettono una personalizzazione secondo le proprie esigenze, mentre la posizione centrale consente di vivere appieno la vivacità del comune di Manduria. Questa casa rappresenta un'opportunità unica per chi desidera coniugare spazio, comodità e una posizione privilegiata.

Mostra tutto

Nelle vicinanze

Trasporto pubblico Trasporto pubblico
Manduria
Manduria
640 m
Trasporto pubblico
940 m
Ospedali Ospedali
Pronto Soccorso Presidio Ospedaliero Giannuzzi
320 m
Supermercati Supermercati
Conad City
560 m
Meta
810 m
PAM express
1,2 Km
EuroSpin
1,6 Km
Bar Bar
Link Bar
1,5 Km
Mostra tutto

Caratteristiche

Rif.:
61005216
Piano:
1 di 1 (Piano terra)
Box:
1
Posti auto:
1
Camere da letto:
2
Arredamento:
Assente
Mostra tutto
Prezzo Prezzo
€ 70.000
Rata mutuo Rata mutuo
€ 333 / mese
Spese annue Spese annue
€ 0
Proponi il tuo prezzoProponi il tuo prezzo

Classe Energetica

G
G
G
G
G
G
G
G
G
EP globale non rinnovabile:
175.00 kW h/m² anno
EP globale rinnovabile:
3.50 kW h/m² anno
EP invernale del fabbricato:
EP estiva del fabbricato:
Anno di costruzione:
1979
Riscaldamento:
Assente

Ti interessa visionare l'immobile?

Fissa un appuntamento  Fissa un appuntamento

Richiedi informazioni

Clicca su Leggi per aprire l'informativa
* Questi campi sono obbligatori

Calcola il tuo mutuo

Semplice e senza impegno
Anticipo

( % )
Mutuo

( % )

pochi semplici passi

inserisci i tuoi dati
Questionario completato
Grazie per aver richiesto un appuntamento senza impegno con un nostro Consulente del Credito e Assicurativo.

Hai inserito correttamente tutti i dati necessari e a breve riceverai una e-mail con un link da convalidare per inviare i tuoi dati.
Affiliato
Studio Mesagne Centro Srl
Corso XX Settembre, 13 74024 Manduria (TA)

Il nostro staff


  • Marco Summa
    Affiliato

  • Elena Fornaciari
    Coordinatrice

  • Nicoleta Jolanta Koziol
    Coordinatrice

  • Federica Emma Anya Mele
    Collaboratrice
Corso XX Settembre, 13 74024 Manduria (TA)
Zona: Manduria
Mostra su mappa
Orari: Lun-Ven: 09:00/13:00 - 16:00/20:00 Sab: 09:00/13:00
Affiliato
Studio Mesagne Centro Srl
Corso XX Settembre, 13 74024 Manduria (TA)

2026 Tecnocasa Franchising S.p.A. - P. IVA 08365160152 - Via Monte Bianco 60/A 20089 Rozzano (MI). Ogni agenzia ha un proprio titolare ed è autonoma. Privacy policy | Policy utilizzo | Cookie policy