Casa indipendente in vendita

Manduria, Via Anzio - San Pietro-Specchiarica
€ 95.000
4 locali 4 locali
91 Mq 91 Mq
1 bagno 1 bagno

Casa indipendente in vendita

Manduria, Via Anzio - San Pietro-Specchiarica

Descrizione annuncio

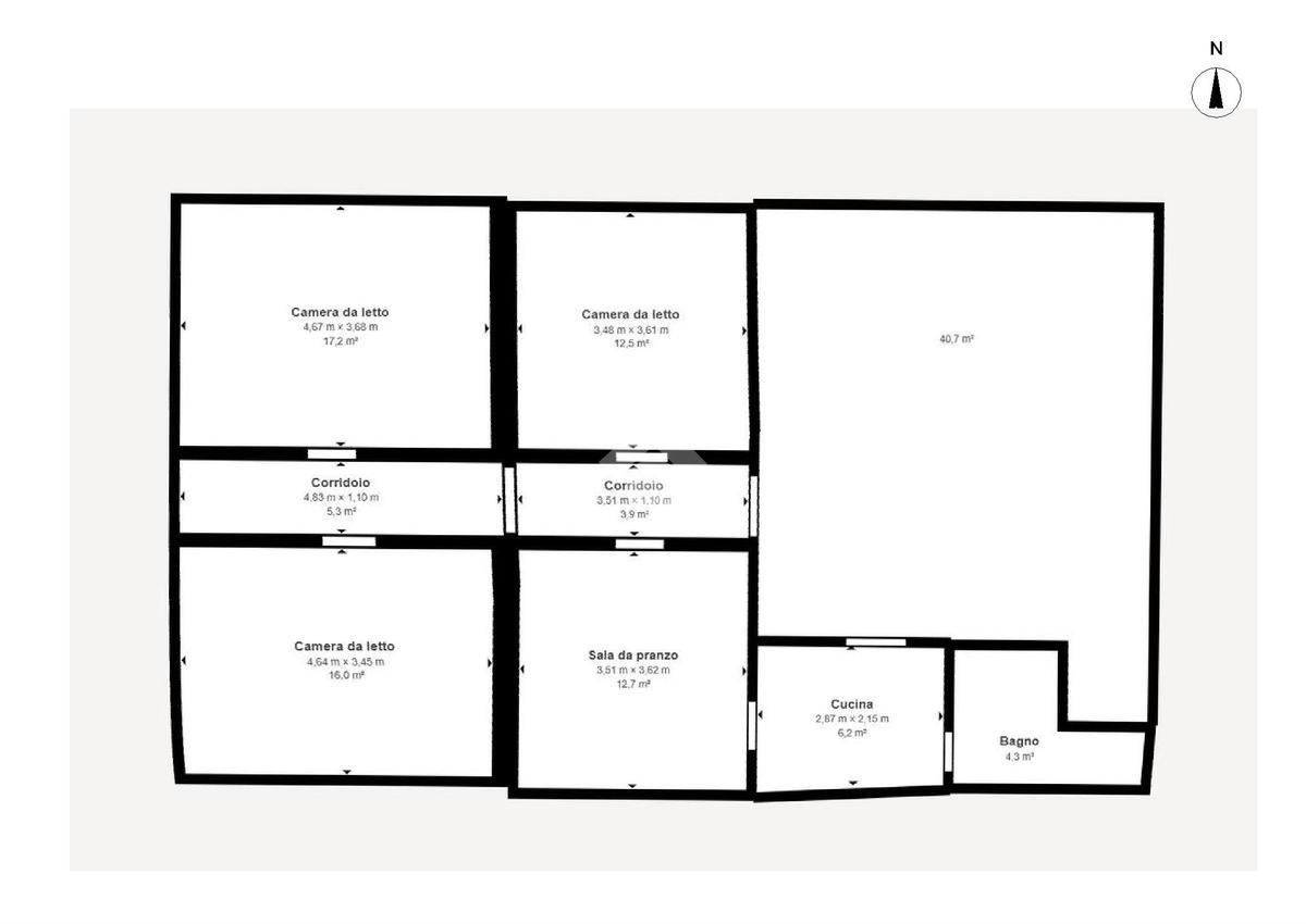
Nel cuore della località di San Pietro-Specchiarica, nel comune di Manduria, si propone in vendita una casa indipendente di 91 mq, ideale per chi cerca comfort e vicinanza al mare.

Situata al piano terra, questa abitazione offre quattro locali ben distribuiti, tra cui tre ampie camere da letto che garantiscono spazio e privacy. Il bagno è funzionale e ben posizionato. Uno dei punti di forza dell'immobile è il grande cortile, perfetto per momenti di relax all'aperto o per organizzare cene estive.

L'aria condizionata assicura comfort in ogni stagione. La posizione strategica, a pochi passi dal mare, rende questa casa una scelta perfetta per chi desidera vivere a contatto con la natura senza rinunciare alle comodità.

Mostra tutto

Nelle vicinanze

Supermercati Supermercati
Centro Commerciale Chidro
2,2 Km
Bar Bar
Summer Light
2,4 Km
Ristoranti Ristoranti
Miramare
400 m
Da zio Giorgio
760 m
Mostra tutto

Caratteristiche

Rif.:
61078162
Piano:
Terra di 1
Totale piani:
1
Terrazzi:
1
Camere da letto:
3
Arredamento:
Parziale
Mostra tutto
Prezzo Prezzo
€ 95.000
Rata mutuo Rata mutuo
€ 444 / mese
Proponi il tuo prezzoProponi il tuo prezzo

Classe Energetica

G
G
G
G
G
G
G
G
G
EP globale non rinnovabile:
175.00 kW h/m² anno
EP globale rinnovabile:
3.50 kW h/m² anno
EP invernale del fabbricato:
EP estiva del fabbricato:
Riscaldamento:
Assente

Ti interessa visionare l'immobile?

Fissa un appuntamento  Fissa un appuntamento

Richiedi informazioni

Clicca su Leggi per aprire l'informativa
* Questi campi sono obbligatori

Calcola il tuo mutuo

Semplice e senza impegno
Anticipo

( % )
Mutuo

( % )

pochi semplici passi

inserisci i tuoi dati
Questionario completato
Grazie per aver richiesto un appuntamento senza impegno con un nostro Consulente del Credito e Assicurativo.

Hai inserito correttamente tutti i dati necessari e a breve riceverai una e-mail con un link da convalidare per inviare i tuoi dati.
Affiliato
Studio Mesagne Centro Srl
Corso XX Settembre, 13 74024 Manduria (TA)

Il nostro staff


  • Marco Summa
    Affiliato

  • Federica Emma Anya Mele
    Collaboratrice

  • Massimo Esposito
    Collaboratore
Corso XX Settembre, 13 74024 Manduria (TA)
Zona: Manduria
Mostra su mappa
Orari: Lun-Ven: 09:00/13:00 - 16:00/20:00 Sab: 09:00/13:00
Affiliato
Studio Mesagne Centro Srl
Corso XX Settembre, 13 74024 Manduria (TA)

2026 Tecnocasa Franchising S.p.A. - P. IVA 08365160152 - Via Monte Bianco 60/A 20089 Rozzano (MI). Ogni agenzia ha un proprio titolare ed è autonoma. Privacy policy | Policy utilizzo | Cookie policy