Casa indipendente in vendita

Manduria, Via Sant'Antonio
€ 70.000
3 locali 3 locali
100 Mq 100 Mq
1 bagno 1 bagno

Casa indipendente in vendita

Manduria, Via Sant'Antonio

Descrizione annuncio

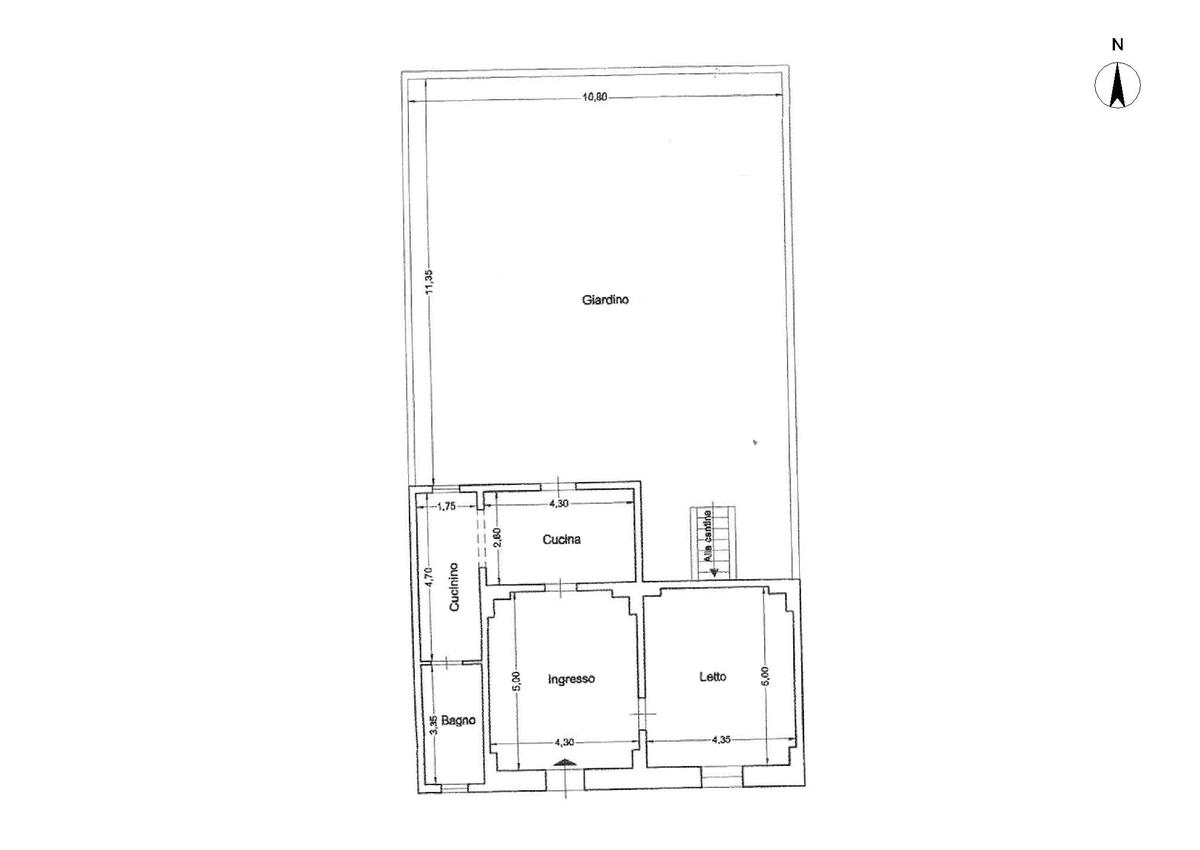
Nel cuore del comune di Manduria, proponiamo in vendita una casa indipendente di 100 mq. Questa abitazione offre un'opportunità unica per chi desidera vivere in un contesto storico e caratteristico. Gli spazi interni sono ben distribuiti, garantendo funzionalità e comfort. La casa si presta a diverse possibilità di personalizzazione, permettendo di adattarla alle proprie esigenze abitative. Situata in una posizione strategica, consente di raggiungere facilmente i principali servizi e le attrazioni del territorio. Ideale per chi cerca una soluzione abitativa che unisca tradizione e praticità, questa proprietà rappresenta un investimento interessante nel panorama immobiliare di Manduria.

Mostra tutto

Nelle vicinanze

Trasporto pubblico Trasporto pubblico
Manduria
Manduria
350 m
Trasporto pubblico
660 m
Ospedali Ospedali
Pronto Soccorso Presidio Ospedaliero Giannuzzi
270 m
Supermercati Supermercati
Conad City
1,1 Km
Meta
1,3 Km
EuroSpin
1,6 Km
PAM express
1,6 Km
Bar Bar
Link Bar
1,9 Km
Ristoranti Ristoranti
Masseria Sorani Dimitri - Masseria del Sale
3,0 Km
Mostra tutto

Caratteristiche

Rif.:
61136510
Piano:
Terra
Camere da letto:
1
Arredamento:
Assente
Condizionamento:
Assente
Ascensore:
No
Mostra tutto
Prezzo Prezzo
€ 70.000
Rata mutuo Rata mutuo
€ 333 / mese
Spese annue Spese annue
€ 0
Proponi il tuo prezzoProponi il tuo prezzo
Immobile valutato con T·Valuta

Classe Energetica

G
G
G
G
G
G
G
G
G
Anno di costruzione:
1975
Riscaldamento:
Assente

Ti interessa visionare l'immobile?

Fissa un appuntamento  Fissa un appuntamento

Richiedi informazioni

Clicca su Leggi per aprire l'informativa
* Questi campi sono obbligatori

Calcola il tuo mutuo

Semplice e senza impegno
Anticipo

( % )
Mutuo

( % )

pochi semplici passi

inserisci i tuoi dati
Questionario completato
Grazie per aver richiesto un appuntamento senza impegno con un nostro Consulente del Credito e Assicurativo.

Hai inserito correttamente tutti i dati necessari e a breve riceverai una e-mail con un link da convalidare per inviare i tuoi dati.
Affiliato
Studio Mesagne Centro Srl
Corso XX Settembre, 13 74024 Manduria (TA)

Il nostro staff


  • Marco Summa
    Affiliato

  • Elena Fornaciari
    Coordinatrice

  • Nicoleta Jolanta Koziol
    Coordinatrice

  • Federica Emma Anya Mele
    Collaboratrice
Corso XX Settembre, 13 74024 Manduria (TA)
Zona: Manduria
Mostra su mappa
Orari: Lun-Ven: 09:00/13:00 - 16:00/20:00 Sab: 09:00/13:00
Affiliato
Studio Mesagne Centro Srl
Corso XX Settembre, 13 74024 Manduria (TA)

2026 Tecnocasa Franchising S.p.A. - P. IVA 08365160152 - Via Monte Bianco 60/A 20089 Rozzano (MI). Ogni agenzia ha un proprio titolare ed è autonoma. Privacy policy | Policy utilizzo | Cookie policy