Casa indipendente in vendita

Manduria, Via S. Maria d'Enghien
€ 75.000
6 locali 6 locali
151 Mq 151 Mq
1 bagno 1 bagno

Casa indipendente in vendita

Manduria, Via S. Maria d'Enghien

Descrizione annuncio

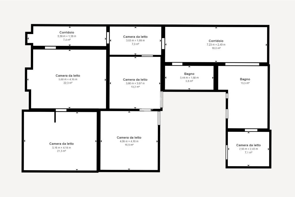
Nel cuore di Manduria, proponiamo in vendita una casa indipendente di 151 mq, costruita nel 1960. Questa proprietà offre spazi ampi e luminosi, ideali per chi desidera personalizzare la propria abitazione. La disposizione su un unico piano terra garantisce comodità e accessibilità, rendendo l'immobile adatto a diverse esigenze abitative. La struttura, da ristrutturare, rappresenta un'opportunità unica per creare un ambiente su misura, combinando il fascino dell'architettura degli anni '60 con le moderne esigenze di comfort e design. Situata in una zona tranquilla, la casa offre la possibilità di vivere in un contesto riservato, pur essendo vicina ai principali servizi del comune. Un'opportunità per chi cerca una soluzione abitativa personalizzabile in una delle località più affascinanti del Salento.

Mostra tutto

Nelle vicinanze

Trasporto pubblico Trasporto pubblico
Manduria
Manduria
1,2 Km
Trasporto pubblico
1,5 Km
Ospedali Ospedali
Pronto Soccorso Presidio Ospedaliero Giannuzzi
850 m
Supermercati Supermercati
Conad City
130 m
Meta
600 m
PAM express
870 m
EuroSpin
1,9 Km
Bar Bar
Link Bar
1,2 Km
Ristoranti Ristoranti
Masseria Sorani Dimitri - Masseria del Sale
2,8 Km
Mostra tutto

Caratteristiche

Rif.:
61194463
Piano:
1 di 1 (Piano terra)
Camere da letto:
1
Arredamento:
Assente
Condizionamento:
Autonomo
Ascensore:
No
Mostra tutto
Prezzo Prezzo
€ 75.000
Rata mutuo Rata mutuo
€ 356 / mese
Spese annue Spese annue
€ 0
Proponi il tuo prezzoProponi il tuo prezzo

Classe Energetica

G
G
G
G
G
G
G
G
G
EP invernale del fabbricato:
EP estiva del fabbricato:
Anno di costruzione:
1960
Riscaldamento:
Autonomo
Tipo impianto:
A radiatori
Tipo alimentazione:
Metano

Ti interessa visionare l'immobile?

Fissa un appuntamento  Fissa un appuntamento

Richiedi informazioni

Clicca su Leggi per aprire l'informativa
* Questi campi sono obbligatori

Calcola il tuo mutuo

Semplice e senza impegno
Anticipo

( % )
Mutuo

( % )

pochi semplici passi

inserisci i tuoi dati
Questionario completato
Grazie per aver richiesto un appuntamento senza impegno con un nostro Consulente del Credito e Assicurativo.

Hai inserito correttamente tutti i dati necessari e a breve riceverai una e-mail con un link da convalidare per inviare i tuoi dati.
Affiliato
Studio Mesagne Centro Srl
Corso XX Settembre, 13 74024 Manduria (TA)

Il nostro staff


  • Marco Summa
    Affiliato

  • Elena Fornaciari
    Coordinatrice

  • Nicoleta Jolanta Koziol
    Coordinatrice

  • Federica Emma Anya Mele
    Collaboratrice
Corso XX Settembre, 13 74024 Manduria (TA)
Zona: Manduria
Mostra su mappa
Orari: Lun-Ven: 09:00/13:00 - 16:00/20:00 Sab: 09:00/13:00
Affiliato
Studio Mesagne Centro Srl
Corso XX Settembre, 13 74024 Manduria (TA)

2026 Tecnocasa Franchising S.p.A. - P. IVA 08365160152 - Via Monte Bianco 60/A 20089 Rozzano (MI). Ogni agenzia ha un proprio titolare ed è autonoma. Privacy policy | Policy utilizzo | Cookie policy