Casa indipendente in vendita

Sava, Via Arno
€ 90.000
6 locali 6 locali
173 Mq 173 Mq
2 bagni 2 bagni

Casa indipendente in vendita

Sava, Via Arno

Descrizione annuncio

Nel cuore del comune di Sava, proponiamo in vendita una casa indipendente di 173 mq, ideale per chi cerca una soluzione abitativa spaziosa e funzionale.

Situata in una zona ben servita, questa proprietà offre la comodità di avere tutti i servizi essenziali a portata di mano. La casa si sviluppa su due piani, garantendo ampi spazi per ogni esigenza familiare.

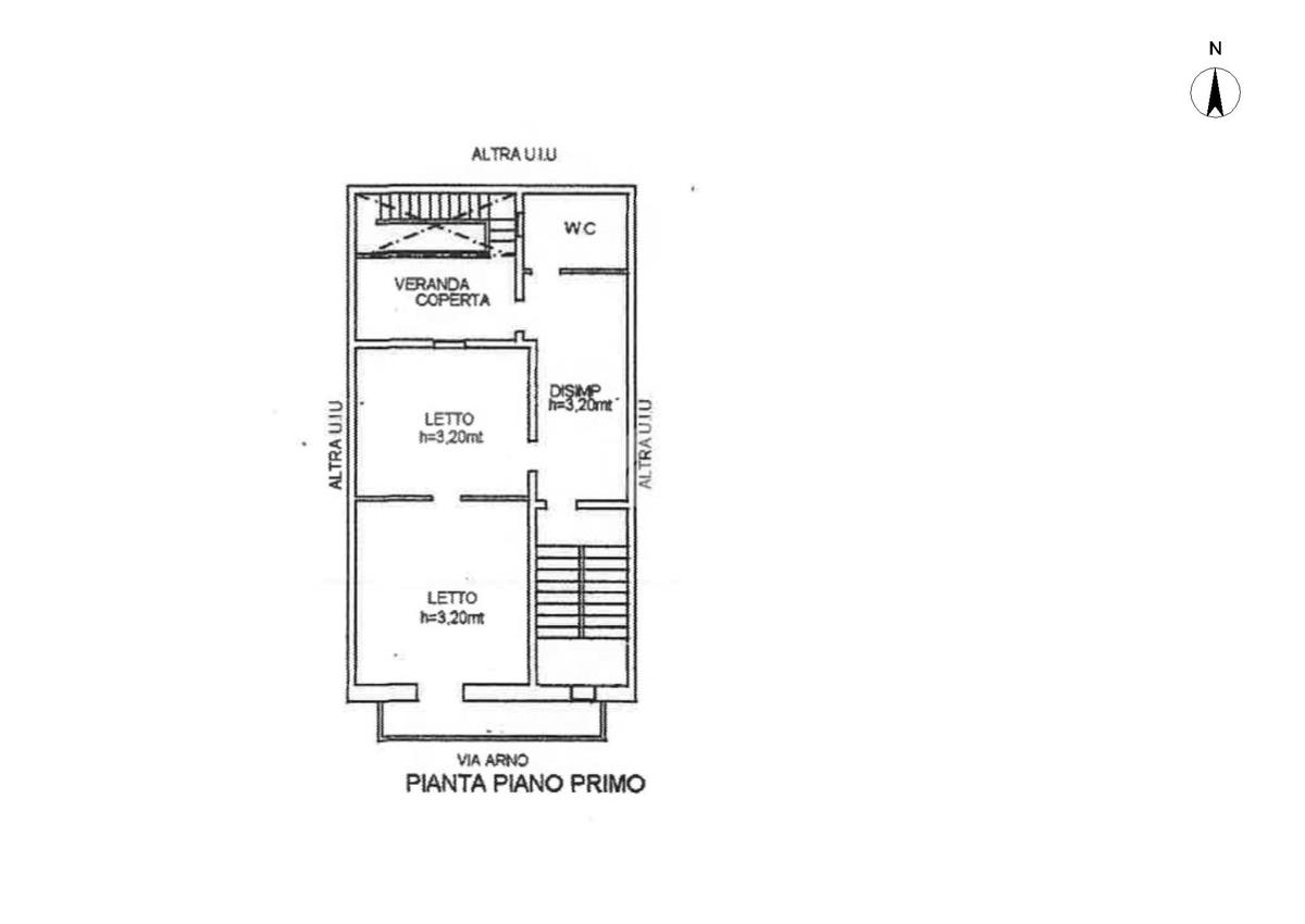
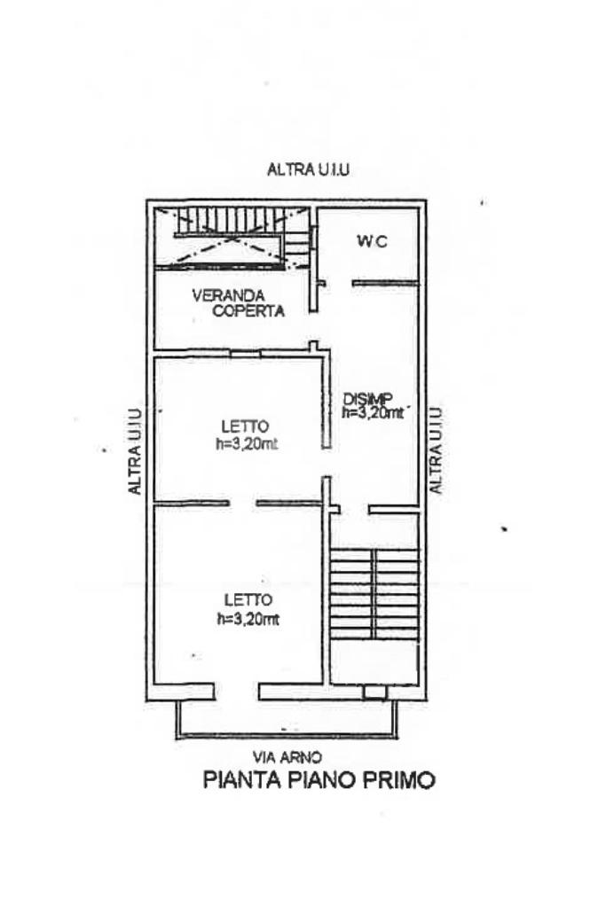
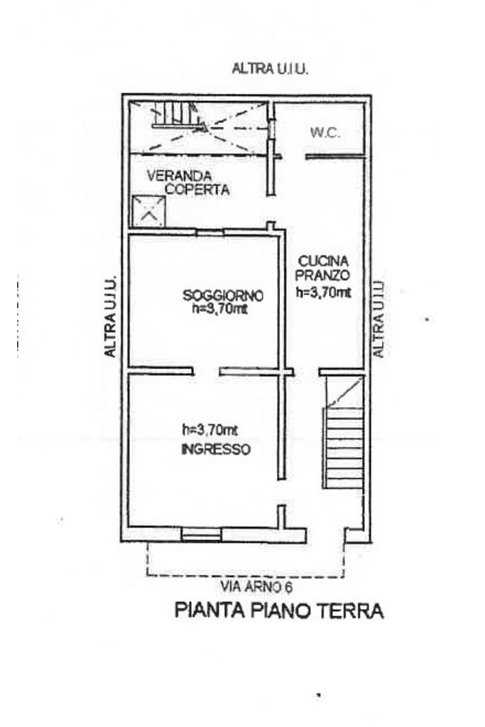
Al piano terra, un accogliente soggiorno si apre verso un cortile interno, perfetto per momenti di relax all'aperto. La cucina abitabile e un bagno completano il piano. Al piano superiore, troviamo le camere da letto e un secondo bagno, assicurando comfort e privacy.

La struttura offre la possibilità di personalizzare gli ambienti secondo i propri gusti e necessità, rendendola una scelta versatile per chi desidera creare la propria casa su misura.

Mostra tutto

Nelle vicinanze

Trasporto pubblico Trasporto pubblico
Trasporto pubblico
530 m
Supermercati Supermercati
EuroSpar
420 m
Lidl
1,1 Km
Negozi Negozi
Gipsy Moda Donna
530 m
Bar Bar
Déjà Vu Lounge Bar
830 m
Ristoranti Ristoranti
Reggia Domizia
2,0 Km
Mostra tutto

Caratteristiche

Rif.:
61066435
Piano:
2 di 2 (Piano su più livelli)
Balconi:
1
Terrazzi:
1
Camere da letto:
3
Arredamento:
Assente
Mostra tutto
Prezzo Prezzo
€ 90.000
Rata mutuo Rata mutuo
€ 420 / mese
Spese annue Spese annue
€ 0
Proponi il tuo prezzoProponi il tuo prezzo

Classe Energetica

G
G
G
G
G
G
G
G
G
EP globale non rinnovabile:
175.00 kW h/m² anno
EP globale rinnovabile:
3.50 kW h/m² anno
EP invernale del fabbricato:
EP estiva del fabbricato:
Anno di costruzione:
1970
Riscaldamento:
Assente

Ti interessa visionare l'immobile?

Fissa un appuntamento  Fissa un appuntamento

Richiedi informazioni

Clicca su Leggi per aprire l'informativa
* Questi campi sono obbligatori

Calcola il tuo mutuo

Semplice e senza impegno
Anticipo

( % )
Mutuo

( % )

pochi semplici passi

inserisci i tuoi dati
Questionario completato
Grazie per aver richiesto un appuntamento senza impegno con un nostro Consulente del Credito e Assicurativo.

Hai inserito correttamente tutti i dati necessari e a breve riceverai una e-mail con un link da convalidare per inviare i tuoi dati.
Affiliato
Studio Mesagne Centro Srl
Corso XX Settembre, 13 74024 Manduria (TA)

Il nostro staff


  • Marco Summa
    Affiliato

  • Federica Emma Anya Mele
    Collaboratrice

  • Massimo Esposito
    Collaboratore
Corso XX Settembre, 13 74024 Manduria (TA)
Zona: Manduria
Mostra su mappa
Orari: Lun-Ven: 09:00/13:00 - 16:00/20:00 Sab: 09:00/13:00
Affiliato
Studio Mesagne Centro Srl
Corso XX Settembre, 13 74024 Manduria (TA)

2026 Tecnocasa Franchising S.p.A. - P. IVA 08365160152 - Via Monte Bianco 60/A 20089 Rozzano (MI). Ogni agenzia ha un proprio titolare ed è autonoma. Privacy policy | Policy utilizzo | Cookie policy